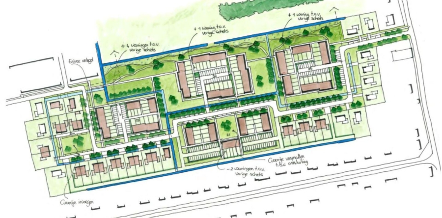
'S GRAVENMOER - De eerste stappen naar het bouwen van woningen in 's Gravenmoer zijn gezet. Het bouwplan heeft de naam 'De Vijf Turven'.
'De Vijf Turven' ligt aan de Julianalaan. Het eerste conceptplan voor ongeveer 130 nieuwbouwwoningen werd in de week van 4 november gepresenteerd. Daarnaast werd de overeenkomst met de ontwikkelaar ondertekend. Het conceptplan biedt zowel koop- als huurwoningen, bestaande uit starterswoningen, eengezinswoningen, vrijstaande woningen, geschakelde levensloopbestendige woningen en sociale huur.
Gemeente Dongen noemt het een groen plan met ruimte voor water en waterberging.







